顶楼90平小复式半包6万,赠送的露台这样设计,瞬间多出一间房!
扫描到手机,新闻随时看
扫一扫,用手机看文章
更加方便分享给朋友
以前一直认为顶楼的户型都很差,都是人家不要的,因为顶楼太多毛病了所以只有挑到最后无奈才会去选择。但是我们这套房子也是顶层,小复式户型赠送了一个露台,半包装修花了6万,把露台这样设计瞬间多出一间房子来,十分的实用,以后要是买房还会考虑买顶楼,真的很不错。
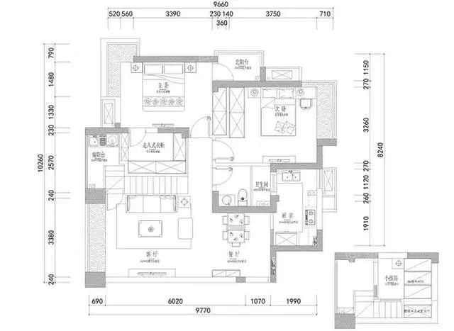
户型图对比,上面的是原始的户型图,没有改造过的,下面的是改造过后的户型图,就是拆了部分的承重墙(因为是顶楼,风险自己承担了),增加了一个上楼的楼梯。



没有设计所谓的玄关,进门直接就是看到餐厅了。

虽然没有玄关,但还是摆放了一些成品的鞋柜放放鞋子等。餐边柜、电视柜、书柜这些都是靠墙摆放的,搭配组合成一套收纳功能。

面积不是很大,所以餐桌靠着墙面放可以省出不少空间过道。

沙发的背后是上楼的楼梯。

墙面是淡灰色的色调,整体室内的基调都是这种浅色系的,搭配上原木色的家具显得清新自然的许多。

没有去设计什么电视墙,就是这样简单的刷了一个墙面再摆放电视柜就可以了。

很喜欢这样飘窗的设计,从窗外可以看到一点点江面哦,算是江景房了吗?哈哈。

沙发前后就是上二楼的楼梯,还做了玻璃护栏。

阳台上做为了洗衣房,打制了一个洗衣台,这样可以让功能更好。

上楼就是赠送的顶层露台,面积不是很大,就7平不到。

过道做了一个简单的吊顶效果,样子出来后觉得视觉上很不错。

厨房还是很大的,7字型厨房,空间可以容纳好几个人在厨房里面

橱柜和砖面颜色很接近,所以显得更像是一个整体。

因为住的人口还算比较多的,所以冰箱也选择的比较大的四门冰箱,不怕没有地方放食物了。

主卧室,留了一个小床是为了方便照顾还小的女儿。

主卧室里面也是比较清新淡雅的风格设计。

风格都是走的简单精致,和客厅是一样的。

父母的房间装修也没有太过复杂,但是收纳功能也是足够的多的。

很喜欢这个次卧室的转角飘窗,十分的安逸。

二楼的露台改造出来的,楼梯口看下面的风景十分的美。


二楼的7平左右空间可以很好的设计成为儿童房,等孩子大了以后还是需要有一个自己独立的空间的。

卫浴间十分干净整洁的,干湿分离做的也很好,保障了日后卫浴间的干燥能力。
声明:本文由入驻焦点开放平台的作者撰写,除焦点官方账号外,观点仅代表作者本人,不代表焦点立场。
